物件ID:199840
情報公開日:2026年04月18日
情報更新日:2026年04月18日
立地
-
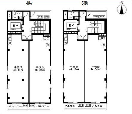
住所 東京都墨田区錦糸二丁目3-10 建物名/所在階 錦糸2丁目新築貸店舗 4F 西/4階 最寄駅 JR中央・総武線錦糸町駅
徒歩2分近隣駅1 ー 近隣駅2 ー
費用/契約
-
造作価格 ー 賃料(坪単価) 319,000円(22,850円) 管理費/共益費(坪単価) 29,000円(2,285円) 保証金/敷金 6ヶ月 / 0ヶ月 償却 0% 礼金 1ヶ月 更新料/再契約料 1ヶ月 その他費用 ー 仲介手数料 1ヶ月 その他手数料 ー 契約期間 3年 契約種別
用途
-
物件の現況 サービス(その他) 可能用途 指定あり 坪数 13.96坪
- 備考



















