物件ID:199356
情報公開日:2026年04月15日
情報更新日:2026年04月15日
立地
-
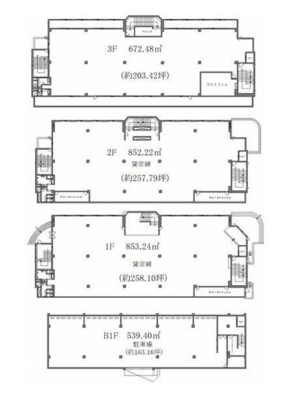
住所 千葉県佐倉市南ユーカリが丘12-1 建物名/所在階 穂⾼ビル/地下1~3階 最寄駅 京成本線ユーカリが丘駅
徒歩5分近隣駅1 ー 近隣駅2 ー
費用/契約
-
造作価格 ー 賃料(坪単価) 3,630,000円(5,046円) 管理費/共益費(坪単価) ー(ー) 保証金/敷金 10ヶ月 / ー 償却 15% 礼金 1ヶ月 更新料/再契約料 1ヶ月 その他費用 事業用総合保険・保証会社加入要 仲介手数料 1ヶ月 その他手数料 ー 契約期間 5年 契約種別
用途
-
物件の現況 サービス(その他) 可能用途 指定あり 坪数 719.33坪
- 備考
- 飲食相談可 3F倉庫等 トイレあり
駐車場無料/別料金で50台まで増大可
面積にB1F駐車場含まず



























