物件ID:199352
情報公開日:2026年04月15日
情報更新日:2026年04月15日
立地
-
住所 埼玉県入間郡三芳町大字藤久保696-1 建物名/所在階 仮称)三芳町店舗/1階 最寄駅 東武東上線みずほ台駅
徒歩26分近隣駅1 ー 近隣駅2 ー
費用/契約
-
造作価格 ー 賃料(坪単価) 1,375,000円(9,050円) 管理費/共益費(坪単価) ー(ー) 保証金/敷金 ー / 8ヶ月 償却 0% 礼金 1ヶ月 更新料/再契約料 1ヶ月 その他費用 保証会社:賃料等合計の100%・火災保険加入要 仲介手数料 1ヶ月 その他手数料 ー 契約期間 3年 契約種別
用途
-
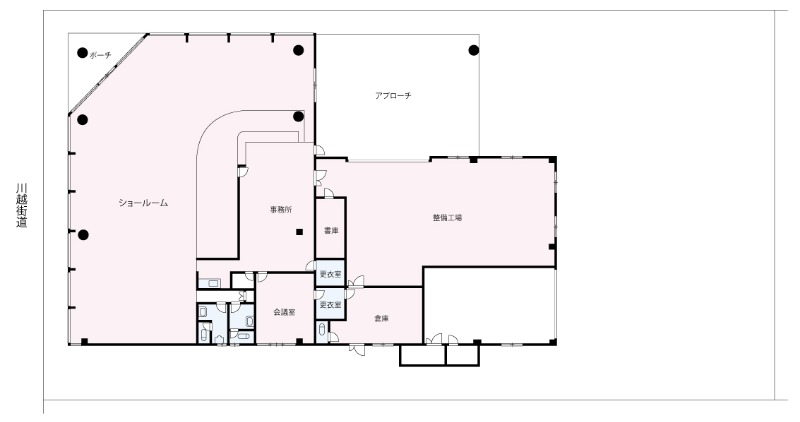
物件の現況 物販 可能用途 指定あり 坪数 151.93坪
- 備考
- 業種ご相談下さい。
現況有姿。
























