物件ID:199220
情報公開日:2026年04月14日
情報更新日:2026年04月14日
立地
-
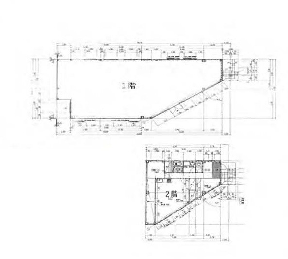
住所 千葉県八千代市高津東一丁目6-19 建物名/所在階 高津東1丁目店舗 一棟/1~2階 最寄駅 京成本線八千代台駅
徒歩18分近隣駅1 ー 近隣駅2 ー
費用/契約
-
造作価格 ー 賃料(坪単価) 852,200円(8,799円) 管理費/共益費(坪単価) ー(ー) 保証金/敷金 ー / 3ヶ月 償却 0% 礼金 1ヶ月 更新料/再契約料 ー その他費用 ー 仲介手数料 1ヶ月 その他手数料 ー 契約期間 3年 契約種別
用途
-
物件の現況 サービス(その他) 可能用途 指定あり 坪数 96.85坪
- 備考



















