物件ID:198878
情報公開日:2026年04月11日
情報更新日:2026年04月11日
立地
-
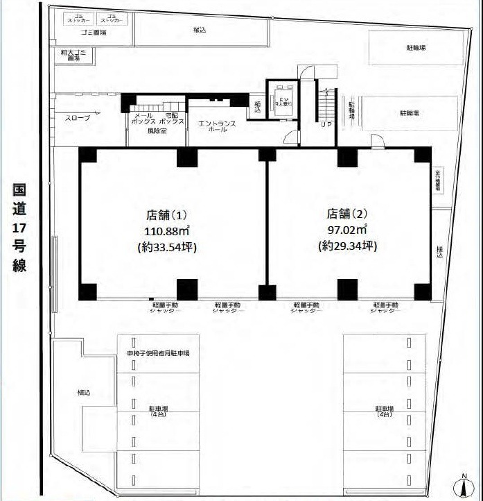
住所 埼玉県戸田市下前一丁目12 建物名/所在階 仮)戸田市下前1丁目テナント店舗1階⑴/1階 最寄駅 JR埼京線戸田公園駅
徒歩7分近隣駅1 ー 近隣駅2 ー
費用/契約
-
造作価格 ー 賃料(坪単価) 550,000円(16,397円) 管理費/共益費(坪単価) ー(ー) 保証金/敷金 0ヶ月 / 6ヶ月 償却 2ヶ月 礼金 1ヶ月 更新料/再契約料 1ヶ月 その他費用 敷地内駐車場:全6台別途有料(16,500/月) 仲介手数料 1ヶ月 その他手数料 ー 契約期間 3年 契約種別
用途
-
物件の現況 ー 可能用途 指定あり 坪数 33.54坪
- 備考



















