物件ID:198036
情報公開日:2026年04月06日
情報更新日:2026年04月06日
立地
-
住所 東京都江東区北砂四丁目11-10 建物名/所在階 渡辺店舗/1階 最寄駅 都営新宿線西大島駅
徒歩17分近隣駅1 東京メトロ東西線南砂町駅
徒歩20分近隣駅2 都営新宿線大島駅
徒歩21分
費用/契約
-
造作価格 990,000万円 賃料(坪単価) 176,000円(19,393円) 管理費/共益費(坪単価) ー(ー) 保証金/敷金 4ヶ月 / 0ヶ月 償却 3ヶ月 礼金 2ヶ月 更新料/再契約料 2ヶ月 その他費用 造作譲渡手数料176,000円/契約時 仲介手数料 1ヶ月 その他手数料 ー 契約期間 2年 契約種別
用途
-
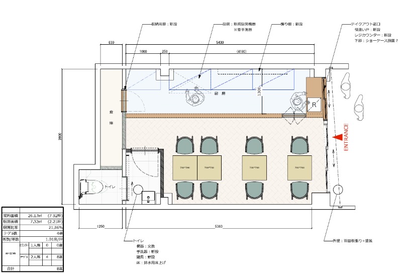
物件の現況 カフェ 可能用途 指定あり 坪数 9.08坪
- 備考
- 重飲食・深夜営業・外国籍不可
商店会加入有り



















