物件ID:197101
情報公開日:2026年03月30日
情報更新日:2026年03月30日
立地
-
住所 東京都渋谷区神宮前四丁目24-2 建物名/所在階 神宮前COURT B/2階 最寄駅 JR山手線原宿駅
徒歩7分近隣駅1 東京メトロ千代田線明治神宮前〈原宿〉駅
徒歩7分近隣駅2 東京メトロ銀座線表参道駅
徒歩6分
費用/契約
-
造作価格 ー 賃料(坪単価) 1,353,000円(38,137円) 管理費/共益費(坪単価) 33,000円(930円) 保証金/敷金 6ヶ月 / ご相談 償却 ご相談 礼金 2ヶ月 更新料/再契約料 1ヶ月 その他費用 ー 仲介手数料 1ヶ月 その他手数料 ー 契約期間 2年 契約種別
用途
-
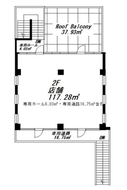
物件の現況 ー 可能用途 指定あり 坪数 35.48坪
- 備考
- 業態につきましてはお気軽にスタッフまでお申し付けくださいませ。
重飲食店は軽飲食程度相談可能 写真は前テナント入居前のもの
スケルトン渡し予定 引渡しは10月を予定























