物件ID:196031
情報公開日:2026年03月20日
情報更新日:2026年03月20日
立地
-
住所 東京都練馬区南大泉三丁目31-22 建物名/所在階 保谷駅前ビル/2階 最寄駅 西武池袋線保谷駅
徒歩2分近隣駅1 ー 近隣駅2 ー
費用/契約
-
造作価格 ー 賃料(坪単価) 1,053,756円(19,801円) 管理費/共益費(坪単価) ー(ー) 保証金/敷金 0ヶ月 / 6ヶ月 償却 ご相談 礼金 1ヶ月 更新料/再契約料 1ヶ月 その他費用 24時間サポート及び諸経費:19,800円 仲介手数料 1ヶ月 その他手数料 ー 契約期間 5年 契約種別 普通賃貸借
用途
-
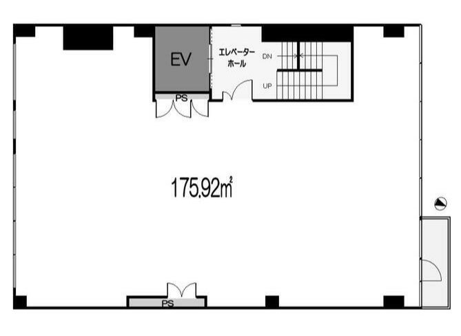
物件の現況 ー 可能用途 何業も可 坪数 53.22坪
- 備考
- 告知事項あり























