物件ID:195911
情報公開日:2026年03月19日
情報更新日:2026年03月19日
立地
-
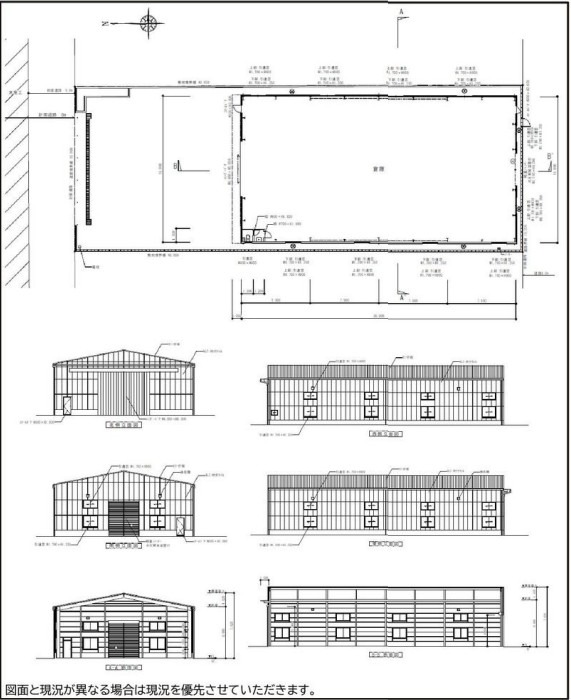
住所 神奈川県海老名市本郷2677-1 建物名/所在階 海老名41/1階 最寄駅 JR相模線門沢橋駅 近隣駅1 ー 近隣駅2 ー
費用/契約
-
造作価格 ー 賃料(坪単価) 990,000円(6,818円) 管理費/共益費(坪単価) 10,100円(76円) 保証金/敷金 4ヶ月 / 0ヶ月 償却 1ヶ月 礼金 1ヶ月 更新料/再契約料 ー その他費用 ー 仲介手数料 1ヶ月 その他手数料 ー 契約期間 2年 契約種別 普通賃貸借
用途
-
物件の現況 ー 可能用途 指定あり 坪数 145.20坪
- 備考



















