物件ID:169155
情報公開日:2025年08月07日
情報更新日:2026年04月09日
立地
-
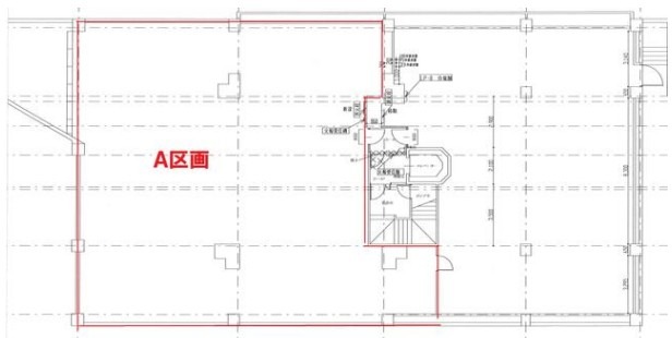
住所 神奈川県海老名市中央三丁目1-5 建物名/所在階 地下1階 最寄駅 小田急線海老名駅
徒歩4分近隣駅1 ー 近隣駅2 ー
費用/契約
-
造作価格 ー 賃料(坪単価) 1,100,000円(12,141円) 管理費/共益費(坪単価) ー(ー) 保証金/敷金 ー / 3ヶ月 償却 ご相談 礼金 1ヶ月 更新料/再契約料 1ヶ月 その他費用 ー 仲介手数料 1ヶ月 その他手数料 ー 契約期間 3年 契約種別
用途
-
物件の現況 ー 可能用途 何業も可 坪数 90.60坪
- 備考



















