物件ID:195884
情報公開日:2026年03月19日
情報更新日:2026年03月19日
立地
-
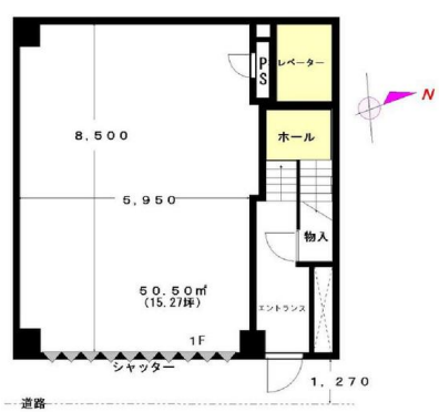
住所 神奈川県川崎市中原区新丸子町739-15 建物名/所在階 ヴェスタンベルク/1階 最寄駅 東急目黒線新丸子駅
徒歩2分近隣駅1 ー 近隣駅2 ー
費用/契約
-
造作価格 ー 賃料(坪単価) ご相談(0円) 管理費/共益費(坪単価) 22,000円(1,440円) 保証金/敷金 6ヶ月 / ご相談 償却 ご相談 礼金 2ヶ月 更新料/再契約料 ー その他費用 ー 仲介手数料 1ヶ月 その他手数料 ー 契約期間 ー 契約種別
用途
-
物件の現況 ー 可能用途 指定あり 坪数 15.28坪
- 備考




















