物件ID:164443
情報公開日:2025年06月30日
情報更新日:2026年03月13日
立地
-
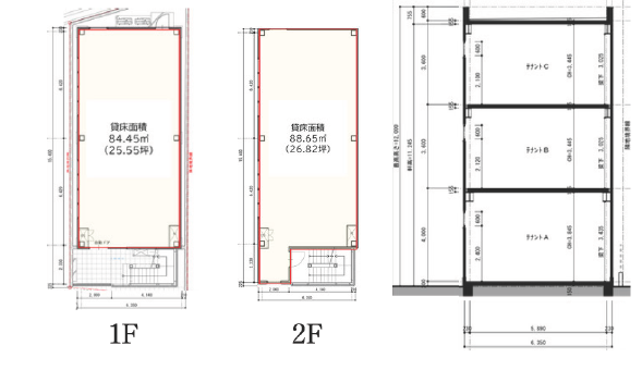
住所 神奈川県川崎市中原区新丸子東三丁目447-8 建物名/所在階 esta VIVO武蔵小杉 2F/2階 最寄駅 東急東横線武蔵小杉駅
徒歩3分近隣駅1 JR南武線武蔵小杉駅
徒歩6分近隣駅2 ー
費用/契約
-
造作価格 ー 賃料(坪単価) 781,000円(29,123円) 管理費/共益費(坪単価) ー(ー) 保証金/敷金 ー / 6ヶ月 償却 0% 礼金 2ヶ月 更新料/再契約料 ー その他費用 看板使用料55000円税込み 仲介手数料 1ヶ月 その他手数料 ー 契約期間 2年 契約種別
用途
-
物件の現況 ー 可能用途 指定あり 坪数 26.82坪
- 備考
- キュービクルなし、動力はありますが、エアコンで余力残少





















