物件ID:195718
情報公開日:2026年03月17日
情報更新日:2026年03月17日
立地
-
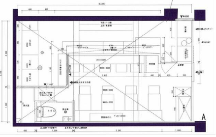
住所 東京都新宿区下宮比町2-3 建物名/所在階 大野屋ビル/1階 最寄駅 JR中央・総武線飯田橋駅
徒歩3分近隣駅1 ー 近隣駅2 ー
費用/契約
-
造作価格 1,980,000万円 賃料(坪単価) 247,500円(27,501円) 管理費/共益費(坪単価) ー(ー) 保証金/敷金 8ヶ月 / ー 償却 2ヶ月 礼金 2ヶ月 更新料/再契約料 ー その他費用 ー 仲介手数料 1ヶ月 その他手数料 ー 契約期間 2年 契約種別 普通賃貸借
用途
-
物件の現況 そば・うどん・麺類 可能用途 ご相談 坪数 9.00坪
- 備考
























