物件ID:195655
情報公開日:2026年03月17日
情報更新日:2026年03月18日
立地
-
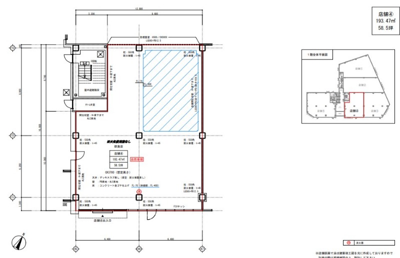
住所 千葉県千葉市美浜区ひび野二丁目7-1 建物名/所在階 KOKO HOTEL海浜幕張/1階 最寄駅 JR京葉線海浜幕張駅
徒歩1分近隣駅1 ー 近隣駅2 ー
費用/契約
-
造作価格 ー 賃料(坪単価) ご相談(0円) 管理費/共益費(坪単価) ー(ー) 保証金/敷金 ー / 12ヶ月 償却 0% 礼金 0ヶ月 更新料/再契約料 ー その他費用 ー 仲介手数料 1ヶ月 その他手数料 ー 契約期間 ー 契約種別 普通賃貸借
用途
-
物件の現況 ー 可能用途 指定あり 坪数 58.52坪
- 備考
- お問合せは担当「栗田」宛て080-1269-8222にお電話下さい
コンビニ・朝食対応カフェ・保育園は不可























