物件ID:195459
情報公開日:2026年03月16日
情報更新日:2026年03月17日
立地
-
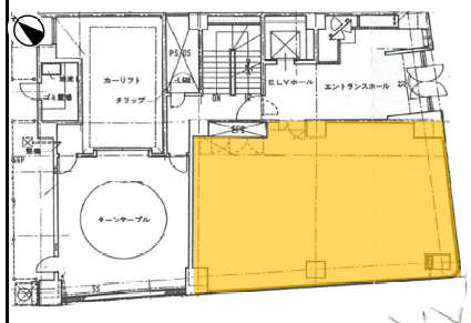
住所 東京都葛飾区青戸三丁目35-1 建物名/所在階 アイピー葛飾ビル 1F/1階 最寄駅 京成本線青砥駅
徒歩1分近隣駅1 ー 近隣駅2 ー
費用/契約
-
造作価格 ー 賃料(坪単価) 730,300円(25,004円) 管理費/共益費(坪単価) ー(ー) 保証金/敷金 ご相談 / ご相談 償却 ご相談 礼金 ご相談 更新料/再契約料 ご相談 その他費用 ー 仲介手数料 1ヶ月 その他手数料 ー 契約期間 ー 契約種別
用途
-
物件の現況 サービス(その他) 可能用途 指定あり 坪数 29.21坪
- 備考



















