物件ID:195171
情報公開日:2026年03月13日
情報更新日:2026年03月13日
立地
-
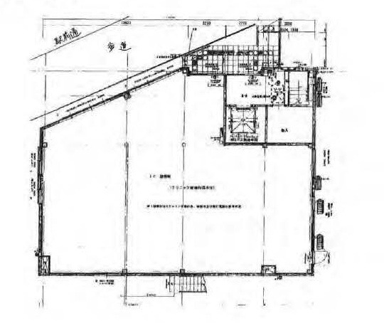
住所 埼玉県さいたま市北区日進町三丁目534-1 建物名/所在階 宮原店舗 1F/1階 最寄駅 JR高崎線宮原駅
徒歩5分近隣駅1 ー 近隣駅2 ー
費用/契約
-
造作価格 ー 賃料(坪単価) 641,784円(13,198円) 管理費/共益費(坪単価) 22,000円(452円) 保証金/敷金 3,000,000 / ー 償却 ご相談 礼金 1ヶ月 更新料/再契約料 ー その他費用 ー 仲介手数料 1ヶ月 その他手数料 ー 契約期間 2年 契約種別
用途
-
物件の現況 サービス(その他) 可能用途 指定あり 坪数 48.63坪
- 備考
- 駐車場あり/月額7,700円 ※物件から2分




















