物件ID:194478
情報公開日:2026年03月09日
情報更新日:2026年03月09日
立地
-
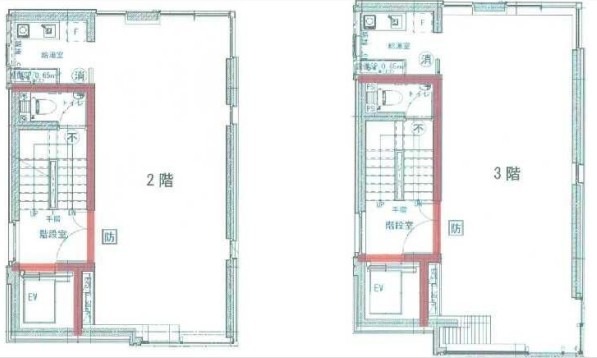
住所 東京都千代田区神田佐久間町三丁目10 建物名/所在階 ソベ/2~3階 最寄駅 JR山手線秋葉原駅
徒歩3分近隣駅1 ー 近隣駅2 ー
費用/契約
-
造作価格 ー 賃料(坪単価) ご相談(0円) 管理費/共益費(坪単価) ー(ー) 保証金/敷金 6ヶ月 / ー 償却 2ヶ月 礼金 0ヶ月 更新料/再契約料 ー その他費用 ー 仲介手数料 1ヶ月 その他手数料 ー 契約期間 2年 契約種別
用途
-
物件の現況 サービス(その他) 可能用途 指定あり 坪数 28.45坪
- 備考



















