物件ID:193955
情報公開日:2026年03月04日
情報更新日:2026年03月24日
立地
-
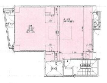
住所 東京都杉並区阿佐谷南一丁目35-10 建物名/所在階 KYOE PLAZA阿佐ヶ谷/2階 最寄駅 JR中央線(快速)阿佐ケ谷駅
徒歩3分近隣駅1 JR中央・総武線阿佐ケ谷駅
徒歩3分近隣駅2 東京メトロ丸ノ内線南阿佐ケ谷駅
徒歩5分
費用/契約
-
造作価格 ー 賃料(坪単価) 866,000円(36,238円) 管理費/共益費(坪単価) ー(ー) 保証金/敷金 8ヶ月 / 0ヶ月 償却 1ヶ月 礼金 1ヶ月 更新料/再契約料 1ヶ月 その他費用 再契約時事務手数料:0.5ヶ月 仲介手数料 1ヶ月 その他手数料 ー 契約期間 ー 契約種別 普通賃貸借
用途
-
物件の現況 ー 可能用途 指定あり 坪数 23.90坪
- 備考




















