物件ID:193868
情報公開日:2026年03月04日
情報更新日:2026年03月04日
立地
-
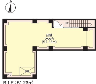
住所 東京都千代田区九段南三丁目5-13 建物名/所在階 ヒーローズ九段/地下1階 最寄駅 都営新宿線市ヶ谷駅
徒歩6分近隣駅1 JR中央・総武線市ケ谷駅
徒歩6分近隣駅2 東京メトロ有楽町線市ケ谷駅
徒歩6分
費用/契約
-
造作価格 ー 賃料(坪単価) 357,819円(23,089円) 管理費/共益費(坪単価) ー(ー) 保証金/敷金 6ヶ月 / ー 償却 2% 礼金 1ヶ月 更新料/再契約料 1ヶ月 その他費用 ー 仲介手数料 1ヶ月 その他手数料 ー 契約期間 3年 契約種別
用途
-
物件の現況 ー 可能用途 指定あり 坪数 15.50坪
- 備考



















