物件ID:193458
情報公開日:2026年04月13日
情報更新日:2026年04月13日
立地
-
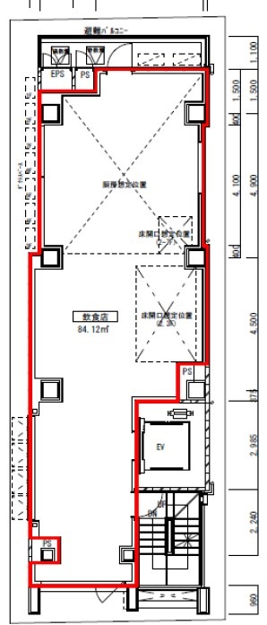
住所 東京都新宿区歌舞伎町一丁目16-1 建物名/所在階 9階 最寄駅 JR山手線新宿駅
徒歩3分近隣駅1 ー 近隣駅2 ー
費用/契約
-
造作価格 ー 賃料(坪単価) 1,188,000円(46,698円) 管理費/共益費(坪単価) 88,000円(3,459円) 保証金/敷金 10,000,000 / 0ヶ月 償却 22% 礼金 1ヶ月 更新料/再契約料 ー その他費用 ー 仲介手数料 1ヶ月 その他手数料 ー 契約期間 3年 契約種別
用途
-
物件の現況 ー 可能用途 指定あり 坪数 25.44坪
- 備考




















