物件ID:193311
情報公開日:2026年02月28日
情報更新日:2026年03月01日
立地
-
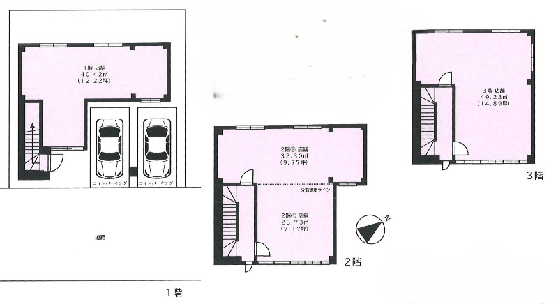
住所 東京都目黒区東山一丁目14-5 建物名/所在階 La vie 中目黒/1~3階 最寄駅 東急東横線中目黒駅
徒歩9分近隣駅1 東急田園都市線池尻大橋駅
徒歩11分近隣駅2 ー
費用/契約
-
造作価格 ー 賃料(坪単価) 1,068,100円(24,237円) 管理費/共益費(坪単価) ー(ー) 保証金/敷金 5ヶ月 / 0ヶ月 償却 1ヶ月 礼金 2ヶ月 更新料/再契約料 1ヶ月 その他費用 ー 仲介手数料 1ヶ月 その他手数料 ー 契約期間 3年 契約種別
用途
-
物件の現況 ー 可能用途 指定あり 坪数 44.07坪
- 備考


















