物件ID:192924
情報公開日:2026年02月25日
情報更新日:2026年02月25日
立地
-
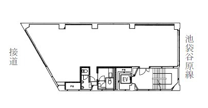
住所 東京都豊島区西池袋一丁目16-1 建物名/所在階 新東第一ビル/3階 最寄駅 JR山手線池袋駅
徒歩1分近隣駅1 東京メトロ副都心線池袋駅
徒歩1分近隣駅2 東京メトロ丸ノ内線池袋駅
徒歩1分
費用/契約
-
造作価格 ー 賃料(坪単価) 976,013円(26,755円) 管理費/共益費(坪単価) 147,262円(4,036円) 保証金/敷金 6ヶ月 / ー 償却 10% 礼金 0ヶ月 更新料/再契約料 ご相談 その他費用 ー 仲介手数料 1ヶ月 その他手数料 ー 契約期間 2年 契約種別 普通賃貸借
用途
-
物件の現況 サービス(その他) 可能用途 指定あり 坪数 36.48坪
- 備考
- 法定点検料:年間33,055円・機械警備料:月額12,000円
袖看板使用料:月額10,000円/片面
再開発地域のため再契約は応相談



















