物件ID:192501
情報公開日:2026年02月21日
情報更新日:2026年02月21日
立地
-
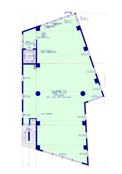
住所 東京都杉並区久我山四丁目1-7 建物名/所在階 (仮)久我山駅前ビル 3F/3階 最寄駅 京王井の頭線久我山駅
徒歩1分近隣駅1 ー 近隣駅2 ー
費用/契約
-
造作価格 ー 賃料(坪単価) 1,166,000円(21,748円) 管理費/共益費(坪単価) ー(ー) 保証金/敷金 6ヶ月 / ー 償却 20% 礼金 1ヶ月 更新料/再契約料 ー その他費用 ー 仲介手数料 1ヶ月 その他手数料 ー 契約期間 5年 契約種別 普通賃貸借
用途
-
物件の現況 ー 可能用途 指定あり 坪数 53.61坪
- 備考



















