物件ID:192467
情報公開日:2026年02月20日
情報更新日:2026年02月20日
立地
-
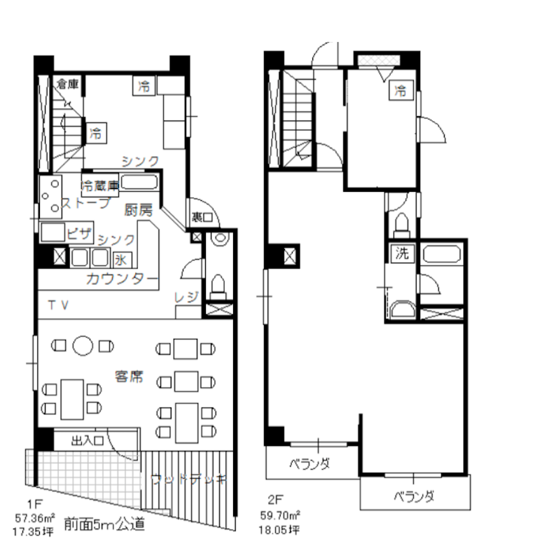
住所 埼玉県ふじみ野市上福岡一丁目11-1 建物名/所在階 市川ビル 2階/2階 最寄駅 東武東上線上福岡駅
徒歩2分近隣駅1 ー 近隣駅2 ー
費用/契約
-
造作価格 ー 賃料(坪単価) 275,000円(5,626円) 管理費/共益費(坪単価) ー(ー) 保証金/敷金 ー / 8ヶ月 償却 2ヶ月 礼金 1ヶ月 更新料/再契約料 ー その他費用 家賃保証会社加入必須 仲介手数料 1ヶ月 その他手数料 ー 契約期間 9年 契約種別 普通賃貸借
用途
-
物件の現況 ー 可能用途 指定あり 坪数 48.88坪
- 備考
- 店舗総合保険·原状回復工事:貸主指定有り




















