物件ID:192346
情報公開日:2026年02月20日
情報更新日:2026年02月20日
立地
-
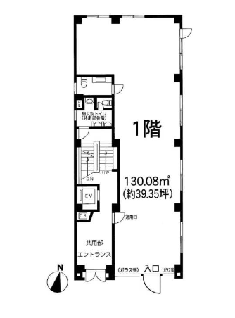
住所 東京都中央区日本橋堀留町一丁目3-18 建物名/所在階 堀一ビル 1階/1階 最寄駅 東京メトロ銀座線三越前駅
徒歩7分近隣駅1 東京メトロ日比谷線小伝馬町駅
徒歩4分近隣駅2 都営浅草線人形町駅
徒歩6分
費用/契約
-
造作価格 ー 賃料(坪単価) 682,000円(17,331円) 管理費/共益費(坪単価) ー(ー) 保証金/敷金 ー / 6ヶ月 償却 2ヶ月 礼金 0ヶ月 更新料/再契約料 ー その他費用 ー 仲介手数料 1ヶ月 その他手数料 ー 契約期間 2年 契約種別
用途
-
物件の現況 サービス(その他) 可能用途 指定あり 坪数 39.35坪
- 備考
- 天井高3.04m






















