物件ID:191780
情報公開日:2026年02月16日
情報更新日:2026年03月02日
立地
-
住所 東京都台東区上野二丁目9-3 建物名/所在階 ギャラン第5ビル 1F/1階 最寄駅 東京メトロ銀座線上野広小路駅
徒歩2分近隣駅1 ー 近隣駅2 ー
費用/契約
-
造作価格 4,950,000万円 賃料(坪単価) 380,820円(32,998円) 管理費/共益費(坪単価) 38,082円(3,299円) 保証金/敷金 8ヶ月 / ー 償却 20% 礼金 1ヶ月 更新料/再契約料 ー その他費用 造作価格は税込 仲介手数料 1ヶ月 その他手数料 ー 契約期間 3年 契約種別
用途
-
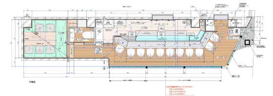
物件の現況 寿司・和食 可能用途 指定あり 坪数 11.54坪
- 備考
- 原則午前11時~翌朝午前3時まで
重飲食不可





















