物件ID:190632
情報公開日:2026年02月06日
情報更新日:2026年02月06日
立地
-
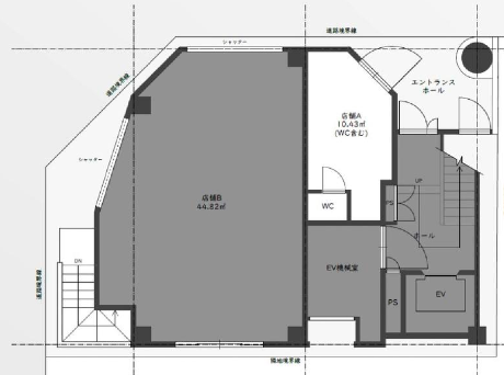
住所 東京都渋谷区道玄坂一丁目13-6 建物名/所在階 斉藤ビル 1F/1階 最寄駅 JR山手線渋谷駅
徒歩4分近隣駅1 東急東横線渋谷駅
徒歩4分近隣駅2 京王井の頭線渋谷駅
徒歩1分
費用/契約
-
造作価格 ー 賃料(坪単価) 495,000円(157,142円) 管理費/共益費(坪単価) ー(ー) 保証金/敷金 3ヶ月 / ー 償却 0% 礼金 0ヶ月 更新料/再契約料 ー その他費用 ー 仲介手数料 1ヶ月 その他手数料 ー 契約期間 3年 契約種別 普通賃貸借
用途
-
物件の現況 サービス(その他) 可能用途 指定あり 坪数 3.15坪
- 備考






















