物件ID:190296
情報公開日:2026年03月19日
情報更新日:2026年03月19日
立地
-
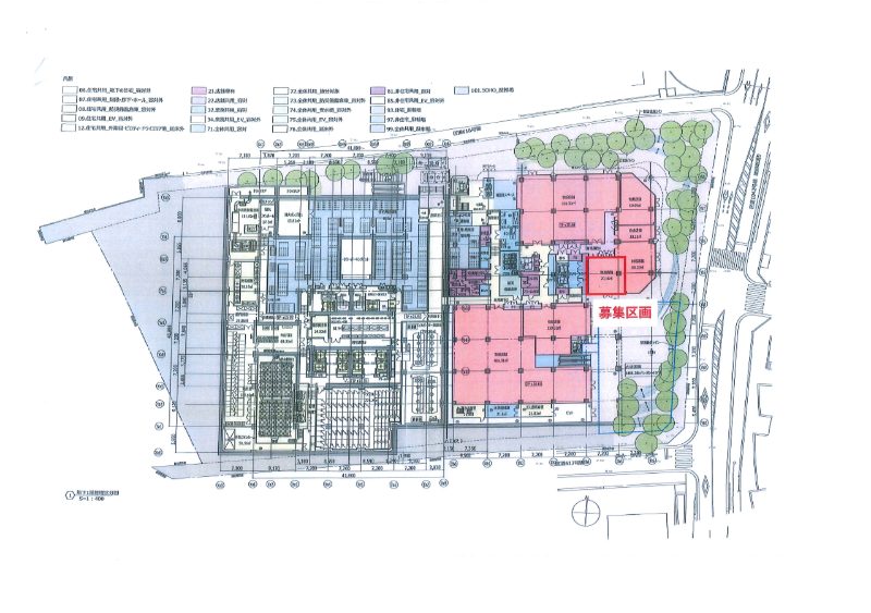
住所 東京都港区赤坂七丁目2 建物名/所在階 赤坂七丁目2番地区 第一種市街地再開発事業/1階 最寄駅 東京メトロ銀座線青山一丁目駅
徒歩6分近隣駅1 ー 近隣駅2 ー
費用/契約
-
造作価格 ー 賃料(坪単価) ご相談(0円) 管理費/共益費(坪単価) ご相談(ご相談) 保証金/敷金 ご相談 / ご相談 償却 ご相談 礼金 ご相談 更新料/再契約料 ー その他費用 ご相談 仲介手数料 1ヶ月 その他手数料 ー 契約期間 ー 契約種別
用途
-
物件の現況 ー 可能用途 ご相談 坪数 21.22坪
- 備考



























