物件ID:189510
情報公開日:2026年01月29日
情報更新日:2026年01月29日
立地
-
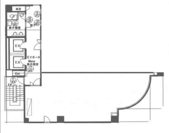
住所 東京都江東区東陽三丁目27-32 建物名/所在階 玉河ビル 9階/9階 最寄駅 東京メトロ東西線東陽町駅
徒歩2分近隣駅1 ー 近隣駅2 ー
費用/契約
-
造作価格 ー 賃料(坪単価) 363,000円(11,775円) 管理費/共益費(坪単価) 33,000円(1,070円) 保証金/敷金 2,178,000 / ー 償却 726,000 礼金 0ヶ月 更新料/再契約料 ー その他費用 ー 仲介手数料 1ヶ月 その他手数料 ー 契約期間 2年 契約種別
用途
-
物件の現況 サービス(その他) 可能用途 指定あり 坪数 30.83坪
- 備考



















