物件ID:189052
情報公開日:2026年01月26日
情報更新日:2026年01月26日
立地
-
住所 東京都練馬区桜台一丁目5-4 建物名/所在階 1階 最寄駅 西武池袋線桜台駅
徒歩1分近隣駅1 ー 近隣駅2 ー
費用/契約
-
造作価格 ー 賃料(坪単価) 350,000円(23,497円) 管理費/共益費(坪単価) ー(ー) 保証金/敷金 ー / 3ヶ月 償却 ご相談 礼金 1ヶ月 更新料/再契約料 1ヶ月 その他費用 保証会社、店舗保険必須等 仲介手数料 1ヶ月 その他手数料 ー 契約期間 2年 契約種別
用途
-
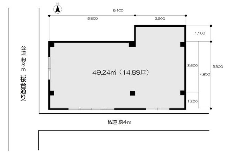
物件の現況 ー 可能用途 何業も可 坪数 14.90坪
- 備考
- ・重飲食相談可です。






















