物件ID:188941
情報公開日:2026年01月26日
情報更新日:2026年01月26日
立地
-
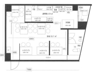
住所 東京都板橋区大山東町22-5 建物名/所在階 第2山根ビル/2階 最寄駅 東武東上線大山駅
徒歩2分近隣駅1 ー 近隣駅2 ー
費用/契約
-
造作価格 ー 賃料(坪単価) 303,600円(24,904円) 管理費/共益費(坪単価) ー(ー) 保証金/敷金 10ヶ月 / 0ヶ月 償却 3ヶ月 礼金 3ヶ月 更新料/再契約料 ー その他費用 ー 仲介手数料 1ヶ月 その他手数料 ー 契約期間 6年 契約種別 普通賃貸借
用途
-
物件の現況 焼肉 可能用途 ご相談 坪数 12.19坪
- 備考

























