物件ID:188933
情報公開日:2026年01月26日
情報更新日:2026年01月26日
立地
-
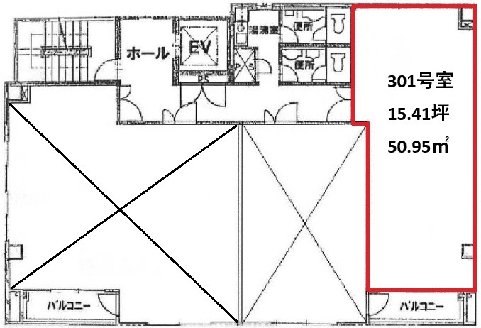
住所 東京都豊島区池袋二丁目54-12 建物名/所在階 RENEX池袋/3階 最寄駅 東京メトロ副都心線池袋駅
徒歩5分近隣駅1 JR山手線池袋駅
徒歩6分近隣駅2 ー
費用/契約
-
造作価格 ー 賃料(坪単価) 339,020円(22,000円) 管理費/共益費(坪単価) ー(ー) 保証金/敷金 6ヶ月 / 0ヶ月 償却 0% 礼金 0ヶ月 更新料/再契約料 1ヶ月 その他費用 ー 仲介手数料 1ヶ月 その他手数料 ー 契約期間 2年 契約種別
用途
-
物件の現況 サービス(その他) 可能用途 指定あり 坪数 15.41坪
- 備考
- 室外男女別トイレ、エントランス全日8時~22時(時間外出入可能)
2025年12月エントランスリニューアル工事
指定保証会社加入必須、保険加入必須






















