物件ID:188177
情報公開日:2026年01月20日
情報更新日:2026年01月20日
立地
-
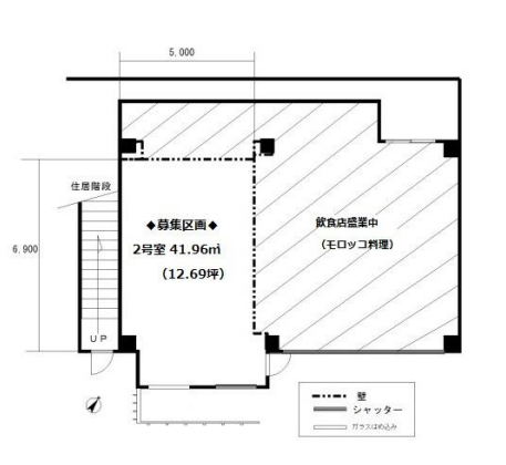
住所 神奈川県横浜市青葉区美しが丘二丁目18-22 建物名/所在階 petite Cerisier(プティスリジエ)002区画/1階 最寄駅 東急田園都市線たまプラーザ駅
徒歩4分近隣駅1 ー 近隣駅2 ー
費用/契約
-
造作価格 2,000,000万円 賃料(坪単価) 374,000円(29,472円) 管理費/共益費(坪単価) 5,500円(433円) 保証金/敷金 0ヶ月 / 6ヶ月 償却 0% 礼金 2ヶ月 更新料/再契約料 1ヶ月 その他費用 鍵交換費用22,000円 指定保証会社・保険加入要 仲介手数料 1ヶ月 その他手数料 ー 契約期間 3年 契約種別
用途
-
物件の現況 居酒屋 可能用途 指定あり 坪数 12.69坪
- 備考
- 保証人不要 都市ガス
居抜きまたはスケルトン渡し
























