物件ID:161389
情報公開日:2025年06月03日
情報更新日:2026年02月24日
立地
-
住所 神奈川県横浜市青葉区鴨志田町560-5 建物名/所在階 サンヒルズ⾦⼦ 203区画/2階 最寄駅 東急田園都市線青葉台駅 近隣駅1 ー 近隣駅2 ー
費用/契約
-
造作価格 ー 賃料(坪単価) 220,000円(7,272円) 管理費/共益費(坪単価) 5,500円(181円) 保証金/敷金 5ヶ月 / ー 償却 20% 礼金 1ヶ月 更新料/再契約料 1ヶ月 その他費用 保険加入要 仲介手数料 1ヶ月 その他手数料 ー 契約期間 3年 契約種別
用途
-
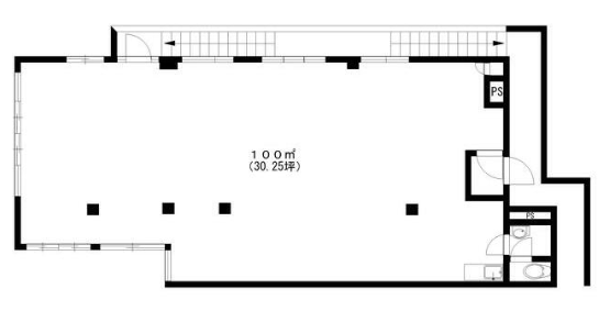
物件の現況 サービス(その他) 可能用途 ご相談 坪数 30.25坪
- 備考
- 駐⾞場有 1台無料(サイズ要確認)
バス停 中⾕都 停歩2分




















