物件ID:187892
情報公開日:2026年01月16日
情報更新日:2026年01月16日
立地
-
住所 東京都渋谷区恵比寿南一丁目11-12 建物名/所在階 The HONDA ARMS 103/1階 最寄駅 JR山手線恵比寿駅
徒歩3分近隣駅1 東京メトロ日比谷線恵比寿駅
徒歩1分近隣駅2 ー
費用/契約
-
造作価格 ー 賃料(坪単価) 352,000円(31,449円) 管理費/共益費(坪単価) ー(ー) 保証金/敷金 6ヶ月 / ー 償却 20% 礼金 2ヶ月 更新料/再契約料 ー その他費用 ー 仲介手数料 1ヶ月 その他手数料 ー 契約期間 3年 契約種別 普通賃貸借
用途
-
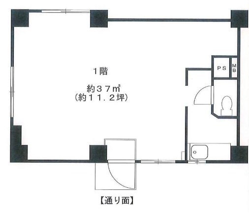
物件の現況 サービス(その他) 可能用途 指定あり 坪数 11.19坪
- 備考





















