物件ID:187749
情報公開日:2026年01月16日
情報更新日:2026年01月16日
立地
-
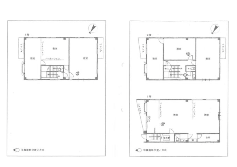
住所 東京都江戸川区南小岩八丁目4-26 建物名/所在階 南小岩一棟貸 1-3F/1~3階 最寄駅 JR中央・総武線小岩駅
徒歩6分近隣駅1 ー 近隣駅2 ー
費用/契約
-
造作価格 ー 賃料(坪単価) 935,000円(13,046円) 管理費/共益費(坪単価) ー(ー) 保証金/敷金 2ヶ月 / ー 償却 ご相談 礼金 2ヶ月 更新料/再契約料 ー その他費用 ー 仲介手数料 1ヶ月 その他手数料 ー 契約期間 2年 契約種別
用途
-
物件の現況 サービス(その他) 可能用途 指定あり 坪数 71.67坪
- 備考



















