物件ID:186779
情報公開日:2026年02月02日
情報更新日:2026年03月09日
立地
-
住所 東京都新宿区払方町1-3 建物名/所在階 3階 最寄駅 都営大江戸線牛込神楽坂駅
徒歩7分近隣駅1 東京メトロ東西線神楽坂駅
徒歩12分近隣駅2 都営新宿線市ヶ谷駅
徒歩8分
費用/契約
-
造作価格 ー 賃料(坪単価) 700,000円(38,516円) 管理費/共益費(坪単価) ご相談(ご相談) 保証金/敷金 5,332,500 / 0ヶ月 償却 0% 礼金 0ヶ月 更新料/再契約料 0ヶ月 その他費用 水光熱費、ゴミ処理費用、初回登録手数料、運営費 別途 仲介手数料 0ヶ月 その他手数料 ー 契約期間 ー 契約種別
用途
-
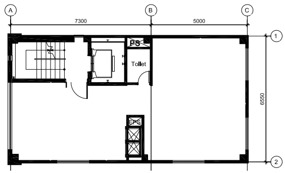
物件の現況 飲食(その他) 可能用途 指定あり 坪数 18.17坪
- 備考
- 本掲載は便宜上、不動産賃貸に用いられる用語を使用しております。
弊社と利用者との関係は賃貸借ではなく、サービス提供を目的とするもの
であり、当事者間で締結される契約書の内容が優先されます。





















