物件ID:186124
情報公開日:2025年12月31日
情報更新日:2026年01月01日
立地
-
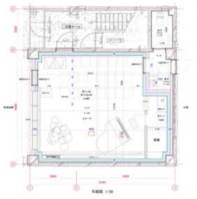
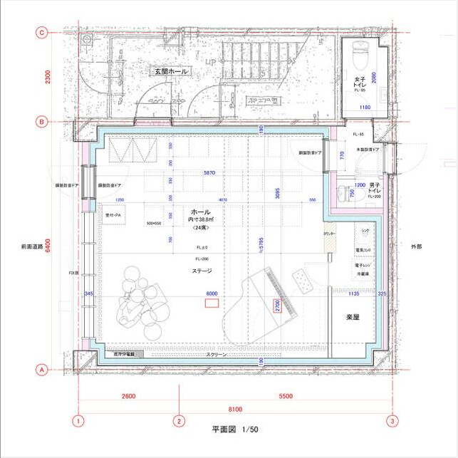
住所 東京都文京区本郷一丁目25-8 建物名/所在階 ⽔道橋SKビル/1階 最寄駅 都営三田線水道橋駅
徒歩3分近隣駅1 ー 近隣駅2 ー
費用/契約
-
造作価格 ー 賃料(坪単価) 700,000円(26,379円) 管理費/共益費(坪単価) 70,000円(2,637円) 保証金/敷金 6ヶ月 / ー 償却 ご相談 礼金 1ヶ月 更新料/再契約料 1ヶ月 その他費用 賃貸保証加入要 フォーシーズ加入必須/火災保険 仲介手数料 1ヶ月 その他手数料 ー 契約期間 3年 契約種別
用途
-
物件の現況 ー 可能用途 何業も可 坪数 26.54坪
- 備考
- 前テナント業種:スタジオ・ホール/ 業種補足説明:ライブハウス
演奏可能/ 深夜営業可能/天井高:3.2m/駅前立地/ 路面店
空調機あり/ 排水設備あり/ 防音処理あり



























