物件ID:186086
情報公開日:2025年12月29日
情報更新日:2026年02月03日
立地
-
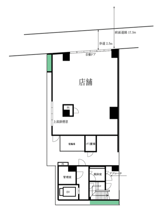
住所 東京都台東区蔵前四丁目32-7 建物名/所在階 Grace蔵前/1階 最寄駅 都営浅草線蔵前駅
徒歩2分近隣駅1 都営大江戸線蔵前駅
徒歩4分近隣駅2 東京メトロ銀座線田原町駅
徒歩6分
費用/契約
-
造作価格 ー 賃料(坪単価) 1,167,320円(38,496円) 管理費/共益費(坪単価) ー(ー) 保証金/敷金 6ヶ月 / 0ヶ月 償却 2ヶ月 礼金 2ヶ月 更新料/再契約料 ー その他費用 ー 仲介手数料 1ヶ月 その他手数料 ー 契約期間 5年 契約種別 普通賃貸借
用途
-
物件の現況 サービス(その他) 可能用途 指定あり 坪数 30.32坪
- 備考
- スケルトン渡し(居抜き相談可)
ガス引き込みなし(借主で引き込み可)





















