物件ID:185961
情報公開日:2025年12月25日
情報更新日:2025年12月25日
立地
-
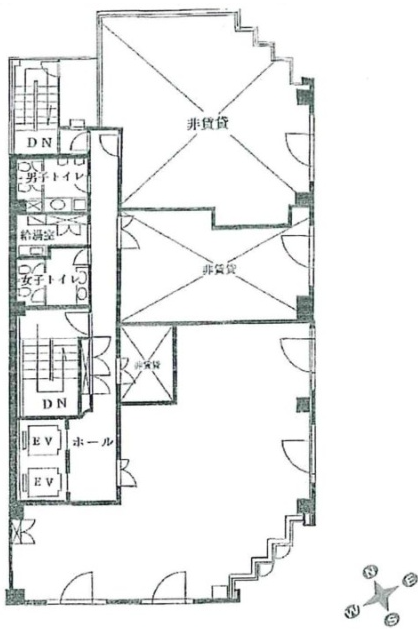
住所 東京都新宿区新宿一丁目9-1 建物名/所在階 ネオックス新宿802/8階 最寄駅 JR山手線新宿駅
徒歩12分近隣駅1 ー 近隣駅2 ー
費用/契約
-
造作価格 ー 賃料(坪単価) 990,000円(21,393円) 管理費/共益費(坪単価) 150,000円(3,241円) 保証金/敷金 6,840,000 / ー 償却 ご相談 礼金 1ヶ月 更新料/再契約料 1ヶ月 その他費用 賃貸保証:加⼊要 初期費⽤1,1 40,000円、年1万円 仲介手数料 1ヶ月 その他手数料 ー 契約期間 3年 契約種別
用途
-
物件の現況 ー 可能用途 指定あり 坪数 46.28坪
- 備考
- 新耐震基準、エレベーター (2基) 機械警備(24時間監視)
天井高 3,300㎜ 24時間利用可 管理人有り (巡回)
1口コンロ ミニキッチン



























