物件ID:185779
情報公開日:2025年12月24日
情報更新日:2025年12月24日
立地
-
住所 東京都渋谷区神宮前六丁目5-6 建物名/所在階 サンポウ綜合ビル 101/1階 最寄駅 東京メトロ千代田線明治神宮前〈原宿〉駅
徒歩1分近隣駅1 ー 近隣駅2 ー
費用/契約
-
造作価格 ー 賃料(坪単価) 7,669,200円(124,841円) 管理費/共益費(坪単価) ー(ー) 保証金/敷金 ー / 8ヶ月 償却 1ヶ月 礼金 1ヶ月 更新料/再契約料 ー その他費用 ー 仲介手数料 1ヶ月 その他手数料 ー 契約期間 2年 契約種別 普通賃貸借
用途
-
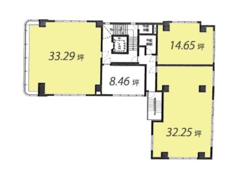
物件の現況 サービス(その他) 可能用途 指定あり 坪数 61.43坪
- 備考





















