物件ID:185598
情報公開日:2025年12月22日
情報更新日:2026年01月05日
立地
-
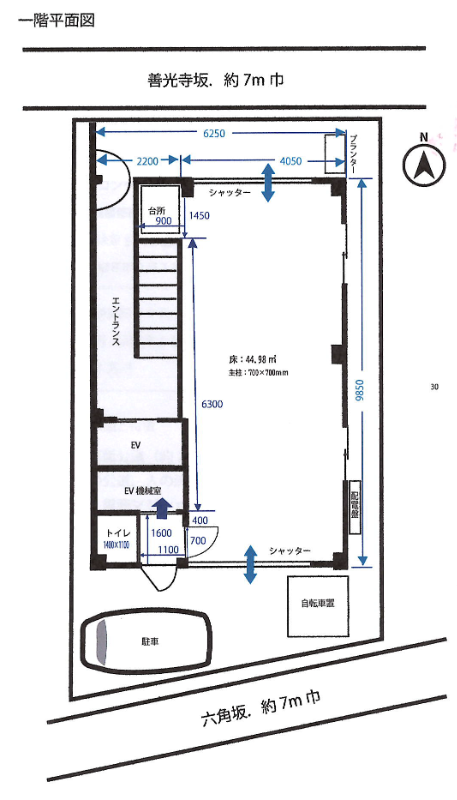
住所 東京都文京区小石川二丁目17-18 建物名/所在階 メゾンタカクラ/1階 最寄駅 東京メトロ南北線後楽園駅
徒歩5分近隣駅1 ー 近隣駅2 ー
費用/契約
-
造作価格 ー 賃料(坪単価) 220,000円(16,168円) 管理費/共益費(坪単価) 11,000円(808円) 保証金/敷金 10ヶ月 / ー 償却 2ヶ月 礼金 1ヶ月 更新料/再契約料 2ヶ月 その他費用 ー 仲介手数料 1ヶ月 その他手数料 ー 契約期間 2年 契約種別
用途
-
物件の現況 ー 可能用途 指定あり 坪数 13.61坪
- 備考
- 24時間使用可能
南北両面公道に面す好立地
スケルトン渡し






















