物件ID:185538
情報公開日:2025年12月22日
情報更新日:2025年12月22日
立地
-
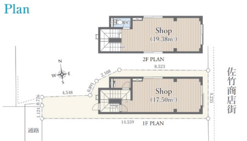
住所 東京都台東区台東三丁目30-11 建物名/所在階 1~2階 最寄駅 都営大江戸線新御徒町駅
徒歩4分近隣駅1 ー 近隣駅2 ー
費用/契約
-
造作価格 ー 賃料(坪単価) 500,000円(33,112円) 管理費/共益費(坪単価) ー(ー) 保証金/敷金 6ヶ月 / ー 償却 2ヶ月 礼金 1ヶ月 更新料/再契約料 1ヶ月 その他費用 保証会社・火災保険加入要 仲介手数料 1ヶ月 その他手数料 ー 契約期間 3年 契約種別
用途
-
物件の現況 ー 可能用途 指定あり 坪数 15.10坪
- 備考
- 1階(25.04㎡)+2階(25.04㎡)



















