物件ID:185433
情報公開日:2025年12月19日
情報更新日:2026年03月13日
立地
-
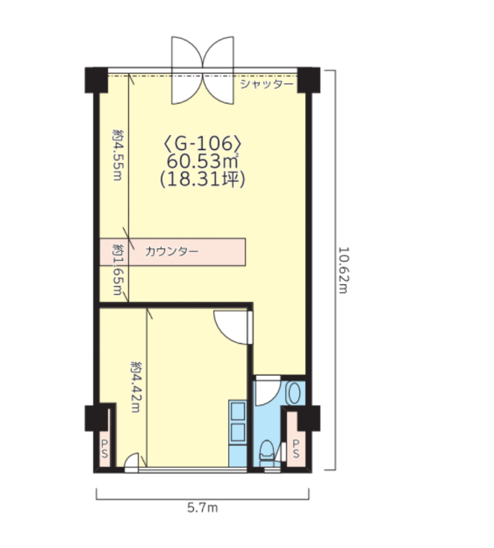
住所 東京都豊島区南池袋二丁目24-1 建物名/所在階 八大ビル 4階/4階 最寄駅 JR山手線池袋駅
徒歩3分近隣駅1 ー 近隣駅2 ー
費用/契約
-
造作価格 ー 賃料(坪単価) 526,350円(35,802円) 管理費/共益費(坪単価) 45,000円(3,367円) 保証金/敷金 3ヶ月 / ー 償却 3ヶ月 礼金 2ヶ月 更新料/再契約料 ー その他費用 ー 仲介手数料 1ヶ月 その他手数料 ー 契約期間 5年 契約種別 普通賃貸借
用途
-
物件の現況 サービス(その他) 可能用途 指定あり 坪数 14.70坪
- 備考
- 飲食店・宗教関係不可 同ビル・不動産・外国籍相談
営業時間制限:24時迄 エレベーター:有(1基)
外部ダクト無(直吹)




















