物件ID:185360
情報公開日:2025年12月19日
情報更新日:2025年12月19日
立地
-
住所 東京都北区赤羽二丁目10-1 建物名/所在階 LaLaガーデン商店街ビル 1F-3F/1~3階 最寄駅 JR京浜東北線赤羽駅
徒歩6分近隣駅1 東京メトロ南北線赤羽岩淵駅
徒歩8分近隣駅2 東京メトロ南北線志茂駅
徒歩11分
費用/契約
-
造作価格 ー 賃料(坪単価) 2,200,000円(91,931円) 管理費/共益費(坪単価) 60,000円(2,507円) 保証金/敷金 6ヶ月 / ー 償却 2ヶ月 礼金 2ヶ月 更新料/再契約料 ー その他費用 ー 仲介手数料 1ヶ月 その他手数料 ー 契約期間 3年 契約種別
用途
-
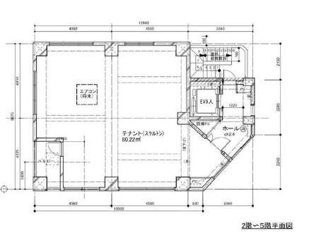
物件の現況 ー 可能用途 指定あり 坪数 23.93坪
- 備考




















