物件ID:185358
情報公開日:2025年12月19日
情報更新日:2025年12月19日
立地
-
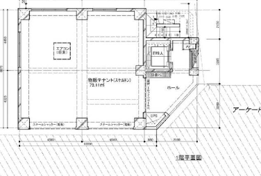
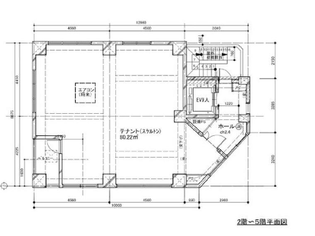
住所 東京都北区赤羽二丁目10-1 建物名/所在階 LaLaガーデン商店街ビル 1F-2F/1~2階 最寄駅 JR京浜東北線赤羽駅
徒歩6分近隣駅1 東京メトロ南北線赤羽岩淵駅
徒歩8分近隣駅2 東京メトロ南北線志茂駅
徒歩11分
費用/契約
-
造作価格 ー 賃料(坪単価) 1,650,000円(68,948円) 管理費/共益費(坪単価) 40,000円(1,671円) 保証金/敷金 6ヶ月 / ー 償却 2ヶ月 礼金 2ヶ月 更新料/再契約料 ー その他費用 ー 仲介手数料 1ヶ月 その他手数料 ー 契約期間 3年 契約種別
用途
-
物件の現況 ー 可能用途 指定あり 坪数 23.93坪
- 備考




















