物件ID:185121
情報公開日:2025年12月17日
情報更新日:2026年03月10日
立地
-
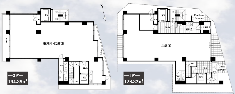
住所 東京都杉並区高円寺南四丁目24-13 建物名/所在階 ホウゲン建設ビル/1~2階 最寄駅 JR中央線(快速)高円寺駅
徒歩2分近隣駅1 ー 近隣駅2 ー
費用/契約
-
造作価格 ー 賃料(坪単価) 1,804,000円(21,425円) 管理費/共益費(坪単価) 11,000円(130円) 保証金/敷金 6ヶ月 / ー 償却 30% 礼金 0ヶ月 更新料/再契約料 1ヶ月 その他費用 事務所の場合敷金3ヶ月 仲介手数料 1ヶ月 その他手数料 ー 契約期間 10年 契約種別 普通賃貸借
用途
-
物件の現況 サービス(その他) 可能用途 指定あり 坪数 84.20坪
- 備考
- 重飲食不可、軽飲食まで相談可能
1年未満の短期解約は違約金(店舗・事務所:賃料3ヶ月分)
1階118.3㎡、2階164.38㎡



















