物件ID:185105
情報公開日:2025年12月17日
情報更新日:2026年03月16日
立地
-
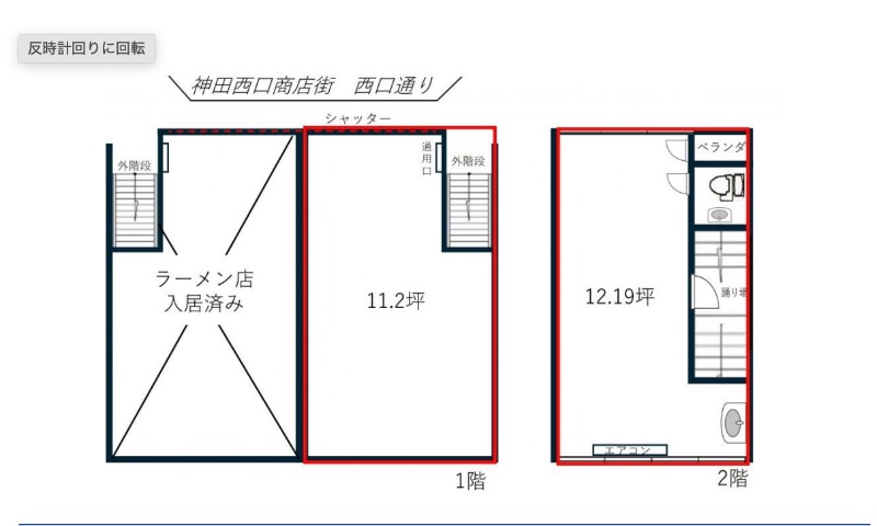
住所 東京都千代田区内神田二丁目9-11 建物名/所在階 森田リズム共同ビル/1~2階 最寄駅 JR山手線神田駅
徒歩2分近隣駅1 東京メトロ銀座線神田駅
徒歩5分近隣駅2 ー
費用/契約
-
造作価格 ー 賃料(坪単価) 990,000円(42,325円) 管理費/共益費(坪単価) 22,000円(940円) 保証金/敷金 10ヶ月 / ー 償却 2ヶ月 礼金 2ヶ月 更新料/再契約料 ー その他費用 ー 仲介手数料 1ヶ月 その他手数料 ー 契約期間 5年 契約種別 普通賃貸借
用途
-
物件の現況 ー 可能用途 指定あり 坪数 23.39坪
- 備考
- スケルトン 現状有姿
看板使用料別途あり






















