物件ID:185024
情報公開日:2025年12月16日
情報更新日:2025年12月16日
立地
-
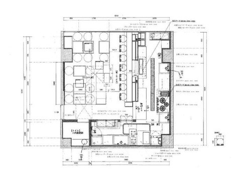
住所 東京都港区六本木六丁目1-5 建物名/所在階 グッドワークビル/2階 最寄駅 東京メトロ日比谷線六本木駅
徒歩1分近隣駅1 ー 近隣駅2 ー
費用/契約
-
造作価格 ー 賃料(坪単価) 715,000円(47,673円) 管理費/共益費(坪単価) ー(ー) 保証金/敷金 9ヶ月 / 0ヶ月 償却 30% 礼金 2ヶ月 更新料/再契約料 ー その他費用 ー 仲介手数料 1ヶ月 その他手数料 ー 契約期間 9年 契約種別 普通賃貸借
用途
-
物件の現況 居酒屋 可能用途 指定あり 坪数 15.00坪
- 備考
- 中途礼金あり3年毎(新賃料の2ヶ月)
























