物件ID:185005
情報公開日:2025年12月16日
情報更新日:2025年12月16日
立地
-
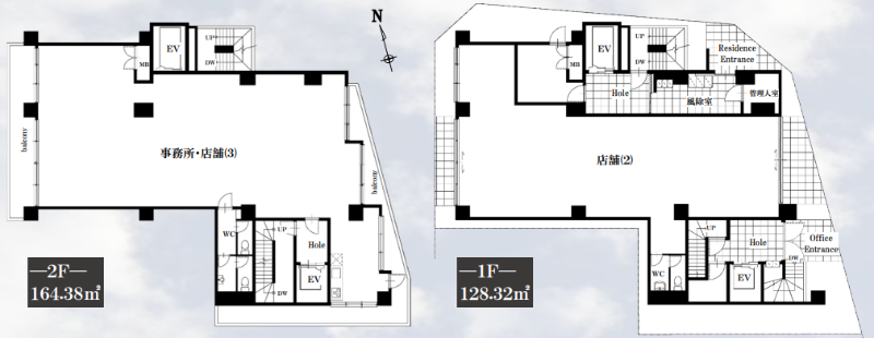
住所 東京都杉並区高円寺南四丁目24-13 建物名/所在階 ホウゲン建設ビル/1~2階 最寄駅 JR中央線(快速)高円寺駅
徒歩2分近隣駅1 ー 近隣駅2 ー
費用/契約
-
造作価格 ー 賃料(坪単価) 1,804,000円(21,096円) 管理費/共益費(坪単価) 11,000円(128円) 保証金/敷金 6ヶ月 / ー 償却 30% 礼金 ご相談 更新料/再契約料 1ヶ月 その他費用 保証会社・保険加入要 仲介手数料 1ヶ月 その他手数料 ー 契約期間 10年 契約種別 普通賃貸借
用途
-
物件の現況 ー 可能用途 指定あり 坪数 85.51坪
- 備考
- フロア貸し可 各階専用トイレ有り 照明器具有 防犯カメラ
2F:エアコン完備、ガス3口キッチン



















